Biatorbágy Ohmüllner Márton sétány 55.
Biatorbágy 3 lakásos
BIATORBÁGY 3 LAKÁSOS TÁRSASHÁZ
ÚTOLSÓ LAKÁS, CSOK FELVEHETŐ!
Biatorbágy közkedvelt lakóparkjában a Zöldsziget lakóparkban valósul meg egy 3 lakásos TH. A környék csendes, nyugodt, közelben óvoda, iskola, játszótér, futópálya stb. Közelben épül Biatorbágy új SZAKGIMNÁZIUMA (https://www.bit-edu.hu/)! Az ingatlanok belső kétszintes lakások, saját kizárólagos kerttel.
“BB” energetikai besorolásúak, alkalmas CSOK, Áfa visszaigénylésre, illeték kedvezményre!
Műszaki ismertető:
– Daikin Altherma LT levegő – víz hőszivattyú, hűtés + fűtés üzemmód, padlón álló beltéri egység beépített HMV tárolóval, beltéri egységben beépített elektromos fűtőbetét, kezelőegység magyar – nyelvű menüvel
– minden szobában külön termosztát
– hideg burkolat br. 8000FT/m2, meleg burkolat 6000FT/m2
– belső nyílászárók br. 70 000FT/DB
– 3 rétegű nyílászárók
– beépített redőnytok
– elektromos kapu és garázskapu
– saját lekerített kizárólagos kert
– napelem előcsövezés
– nagy üvegfelületeknél elektromos redőny előkészítés
– vizlágyító csatlakozási pont kiépítés
– beépített Geberit WC
Kérjük, hogy saját kényelme, az esetleges várakozás elkerülése érdekében előzetesen szíveskedjen időpontot egyeztetni! A helyszíni bejárást csak előre egyeztetett időpontban tudjuk biztosítani, a balesetvédelmi előírások miatt! Köszönjük megértésüket!
| Lakás száma | Szoba szám | Bruttó terület | Garázs terület (nm) | Nettó terület / Lakás | Kert | Ár (Ft) Garázzsal | Részletek |
|---|---|---|---|---|---|---|---|
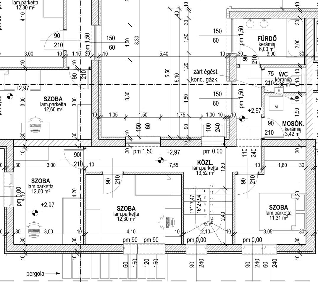
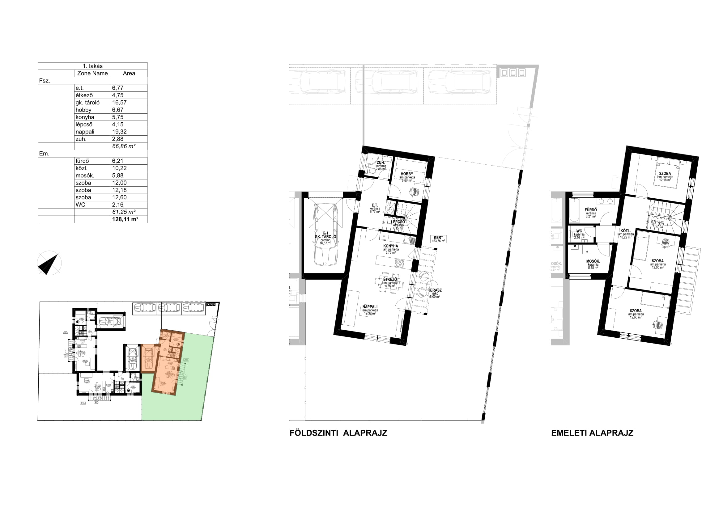
| 1. lakás | N+4háló | 128,11 nm | 16,57 nm | 111,54 nm | 154 nm | ELKELT | Alaprajz |
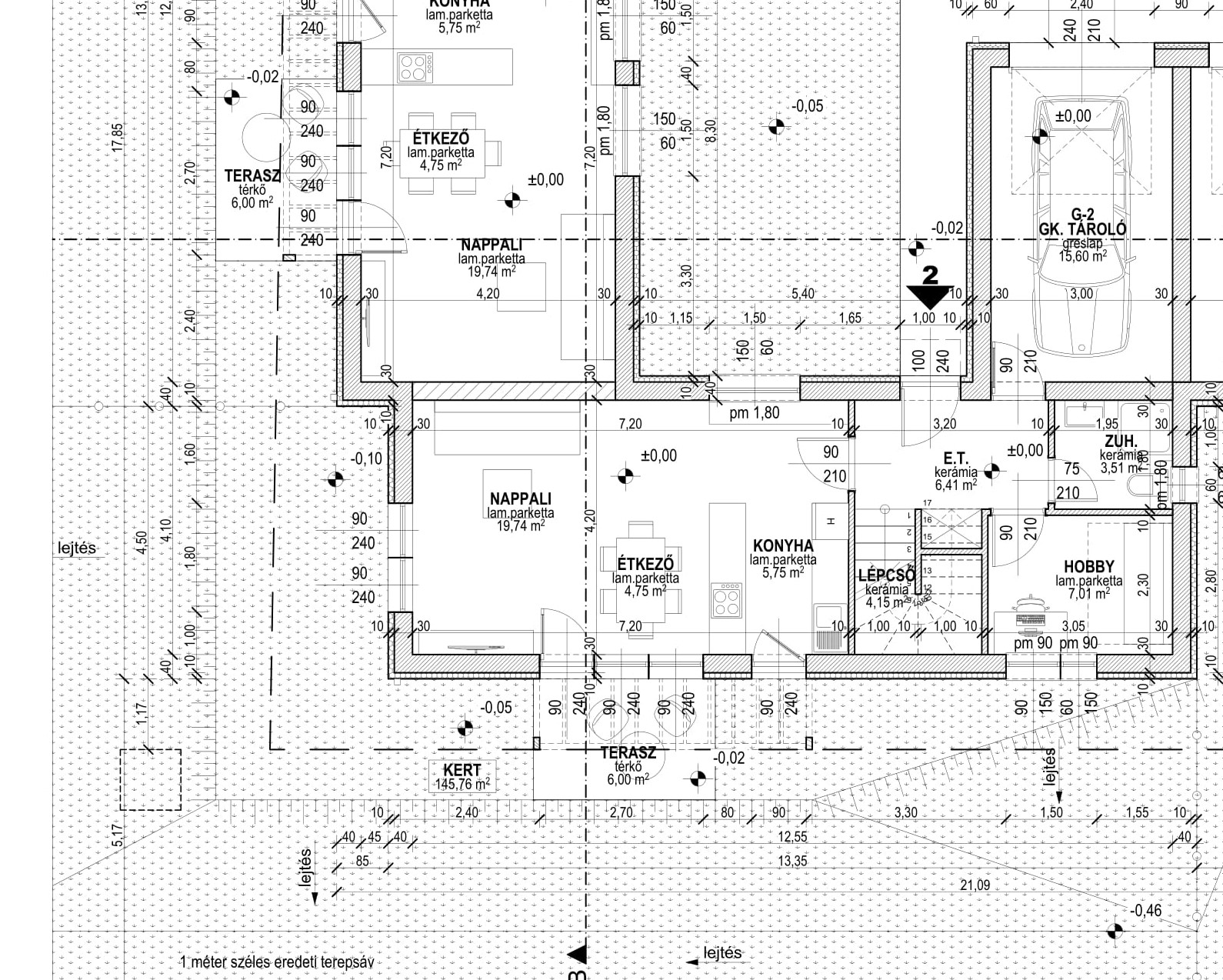
| 2. lakás | N+4háló | 128,05 nm | 15,6 nm | 112,45 nm | 146 nm | ELKELT | Földszint Emelet |
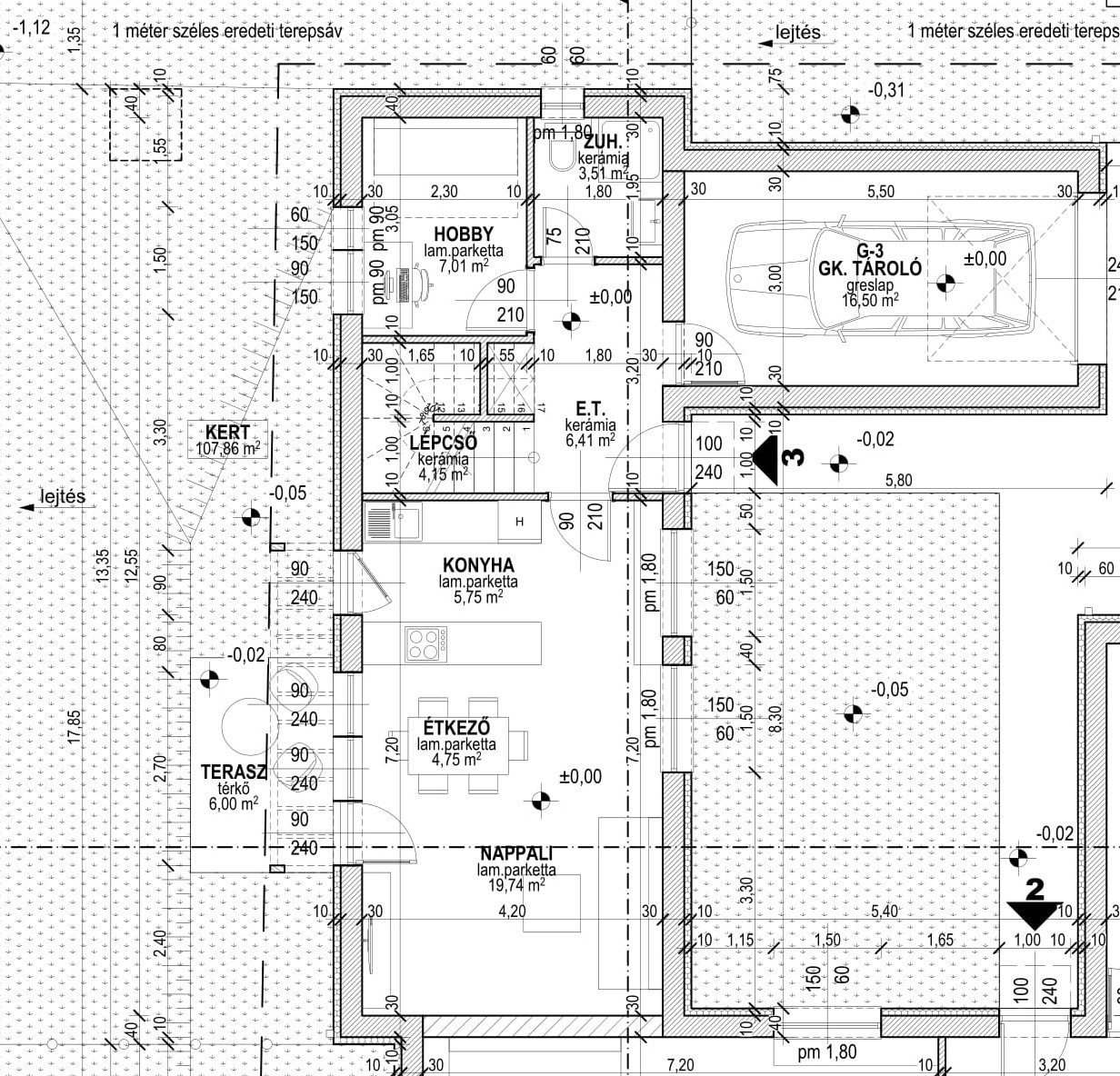
| 3. lakás | N+4háló | 129,89 nm | 16,5 nm | 113,39 nm | 108 nm | ELKELT | Földszint Emelet |