Rahó ikerház

A++ energiatakarékos ház hővisszanyerős szellőztető rendszerrel!

Sasad jól elérhető részén közel tömegközlekedéshez, autópályákhoz, bevásárlási lehetőségekhez, de mégis NYUGODT ZÖLD ÖVEZETBEN kínálunk eladásra egy KÉT UTCÁRÓL MEGKÖZELÍTHETŐ EZÁLTAL SAJÁT KÜLÖN BEJÁRATTAL RENDELKEZŐ ikerházi lakást.

Környék:
Sasad Óvoda, játszóterek
CBA – LIDL boltok
IBIS Hotel
M7-M1 kivezető
Budapest ONE irodaház
Kelenföldi pályaudvar
ETELE Plaza

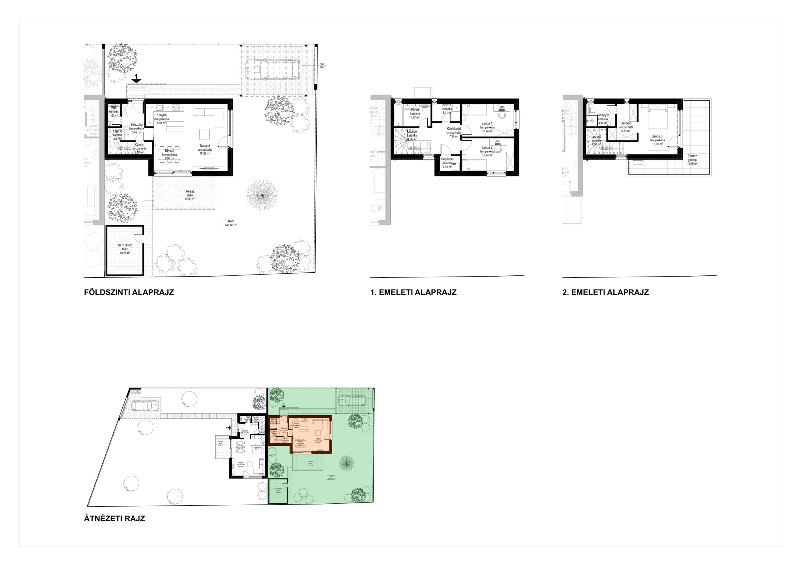
Telek: 769 m2 telek a Rahó utcára és az Ugron Gábor utcára nyílik. Az ikerházak külön utcáról bejáratosak, teljesen elszeparálva egymástól. SAJÁT KÜLÖN FALAZAT! Környezete lombos fák, tuják határolják. Szomszédoknak minimális rálátása lesz az udvarokra.

Épület: lakásonként 116 m2 hasznos lakótér három szinten. Földszinten kb. 20 m2 terasz, felső emeleten szülői hálóhoz saját 20 m2 erkély. Autóbeálló akár 2DB kocsinak is!

Földszint: konyha – étkező – nappali – WC
1. emelet: 2DB gyerekszoba – fürdő – mosókonyha – gépészeti helyiség
2. emelet: Szülői háló – fürdőszoba – erkély vagy 2DB hálószoba

Műszaki tartalom:

– A++ energetikai tanúsítvány
– 10 cm Grafitos szigetelés
– Porotherm 30 X-therm Rapid Dryfix tégla
– Minőségi 3 rétegű kivül színes nyílászárók
– Aluprof színes redőny, elektromos redőnyözés
– elektromos külső kapu
– napelem előcsövezés
– hőszivattyú hűtő-fűtő rendszer
– hővisszanyerős automata szellőztetőrendszer az egész lakásban
– szobánkénti termosztát
– térkő burkolat

Kérjük, hogy saját kényelme, az esetleges várakozás elkerülése érdekében előzetesen szíveskedjen időpontot egyeztetni! A helyszíni bejárást csak előre egyeztetett időpontban tudjuk biztosítani, a balesetvédelmi előírások miatt! Köszönjük megértésüket!